
Dobřejovice leží jihovýchodně od Prahy, sousedí s Jesenicí a Průhonicemi. Rychle se tu rozšiřuje a zkvalitňuje místní občanská vybavenost. Najdete tu mateřskou školu, poštu, obchod s potravinami, pekárnu, fotbalové a dětské hřiště. Domintou obce je krásný barokní zámek. V Dobřejovicích najdete jak starší zástavbu tak i moderní domy, které dohromady tvoří jeden harmonický celek. V obci funguje několik občanských spolků, které pořádají kulturní, sportovní a společenské akce.
Obec nabízí komfortní a moderní bydlení blízko přírody a přitom dobré dopravní dostupnosti do Prahy. Díky sjezdu z dálnice D1 jste autem v Praze za 10 minut. Za pouhých pět minut jízdy autem dojedeme do obchodní a zábavní zóny Čestlice, která nabízí celou řadou služeb a obchodů jako jsou např. OC Průhonice, OC Spektrum, Makro, KIKA, Bauhaus, Žirafa Funpark, Aquapalace aquapark a další.
V docházkové vzdálenosti se nachází dobřejovický rybník “Skalník” obklopený krásnou scenérií břízou porostlých strání a bývalým břidlicovým lomem. Je to místo jako stvořené pro rodinné vycházky nebo sportovní vyžití. Milovníci cyklistiky jistě ocení cyklostezky vedoucí do Prahy i kolem Průhonického parku, s napojením v Dobřejovicích. Na výlet můžete zavítat i do Průhonického zámku nebo do zámeckého parku s botanickou zahradou.

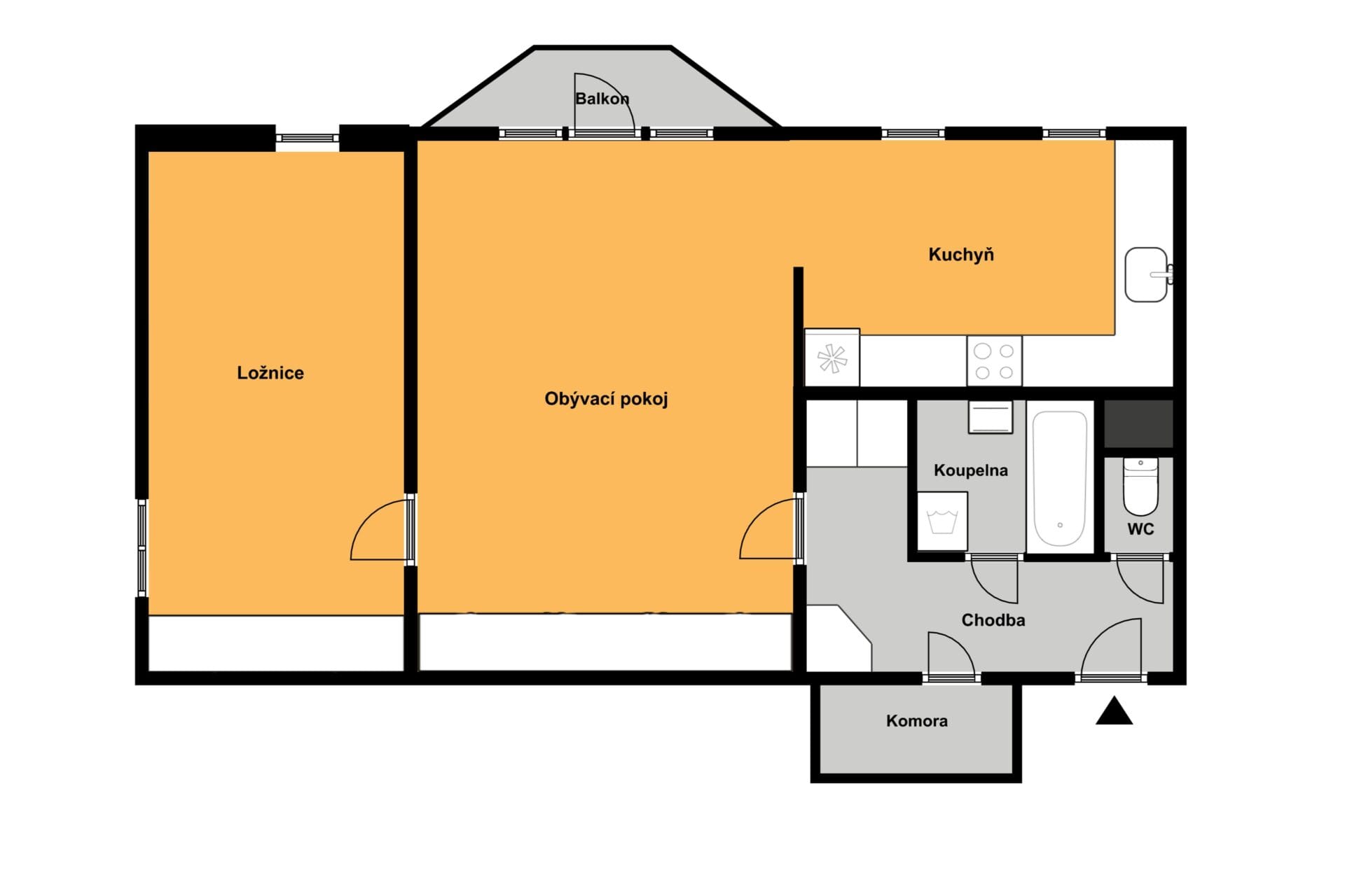
Vybavení: kuchyňská linka s vestavěnými spotřebičemi – plynová varná deska, elektrická trouba, digestoř, samostatně stojící lednice s mrazákem. V ložnici je dvojlůžko a noční stolky. V obývacím pokoji je obývací stěna, rohová sedačka (na dosloužení) a konferenční stolek. Dostatek úložných prostor poskytují vestavěné skříně v obývacím pokoji a ložnici a dále komora. V koupelně je vana se sprchovou zástěnou. Součástí bytu je příjemný balkón a sklep. Topení v bytě a ohřev vody zajišťuje kombinovaný kotel umístěný v komoře.
Parkování je možné před domem.
Hledáme slušné, spolehlivé a bonitní nájemníky. K nastěhování 20.9.2023.
Nájemné 15.000 Kč, kauce 30.000 Kč, zálohy 196 Kč/1 osoba. Elektřina a plyn se převádí na nájemníka.
Autobusová stanice 440 m od domu, do Čestlic dojedete za 9 minut, na metra Opatov za 24 min.
V případě zájmu o prohlídku mě prosím kontaktujte e-mailem.
