
Klánovice jsou vyhledávanou prestižní lokalitou na východním okraji hlavního města Prahy. Dříve byly historicky významným centrem odpočinku pražské smetánky, dnes jsou symbolem luxusního rezidenčního bydlení. A to zejména díky přírodní rezervaci Klánovický les, který se rozkládá na ploše 287,357 ha. Les je protkaný turistickými, cyklistickými a naučnými stezkami.
Klánovice se pyšní dobrou dostupností do centra Prahy i na dálnici D10, D0 a D11.
Skvělá je i dostupnost MHD – zastávka autobusu Voňkova se nachází cca 200m od domu, autobus vás za pár minut doveze na vlakové nádraží nádraží. A vlakem jste na Masarykově nádraží za 21 minut.
V okolí naleznete také veškerou občanskou vybavenost: potraviny, poštu, lékárnu, MŠ, ZŠ a SŠ, kulturní centrum s kinosálem, dětská a sportovní hřiště, oblíbené koupaliště, studio jógy, kosmetický salón, a řadu příjemných kaváren, restaurací a bister.
Nemovitost je možné hradit hypotékou.

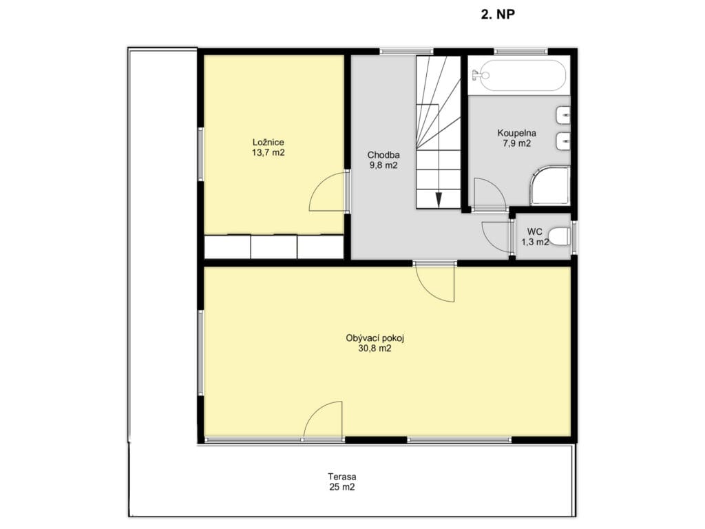
Na pozemku je umístěný rodinný dům s půdorysem cca 8 x 8,5 m a užitnou plochou 115 m2, s garáží a terasou (30 m2), který je ve stavu před kompletní rekonstrukcí nebo demolicí. Dům má dvě nadzemní podlaží. Konkrétní představu o jednotlivých místnostech získáte po shlédnutí půdorysů, které jsou součástí galerie. Dispozičně se jedná o byt 3+1 s terasou, skladem, technickou místností a garáží. Na pozemku se nachází ještě jedna jednopodlažní stavba o rozloze 8,8 x 6 m, dispozičně nabízí prostor 2+kk a je také vhodná ke kompletní rekonstrukci nebo demolici.
Vizualizaci možného budoucího stavu najdete v galerii, včetně půdorysů.
Klánovice jsou ideálním místem pro bydlení, aktivní odpočinek i relaxaci a nyní se můžou stát i vaším domovem.
V případě zájmu o více informací či prohlídku mě neváhejte kontaktovat.
