Byt k pronájmu — Pronajato
Praha 9 – Kbely, ulice Toužimská
Slunný byt 2+1 s balkonem a sklepem v klidné části Prahy 9 – Kbely
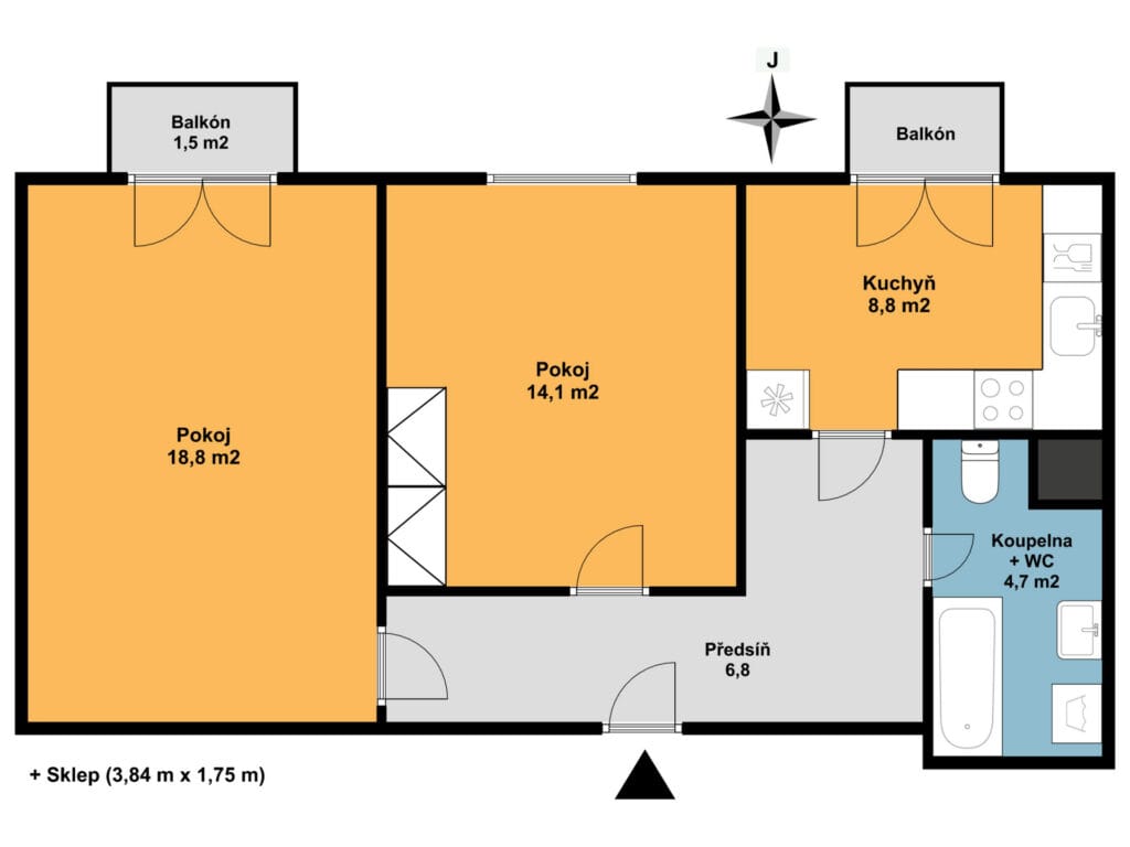
| Dispozice | 2+1 | |
| Užitná plocha | 56m2 | |
| Podlaží | 2/3 | |
| Stavba | Panel | |
| Stav objektu | Velmi dobrý | |
| Energ. náročnost | C — úsporná | |
| Vlastnictví | Osobní | |
| Vyhrazené parkování | Ne | |
| Výtah | Ne | |
| Sklep | Ano | |
| Balkón | Ano |
V zastoupení majitele vám exkluzivně nabízím k dlouhodobému pronájmu byt 2+1 o velikosti 56 m² se dvěma balkony (každý o ploše 1,5 m²), situovaný v klidné městské části Praha 9 – Kbely, v ulici Toužimská. Byt se nachází ve 2. podlaží třípodlažního domu bez výtahu.
BYT
Dispozice bytu je praktická – tvoří jej chodba, kuchyně, koupelna s WC a obývací pokoj. Všechna tři okna jsou orientována na jih, což zajišťuje dostatek denního světla po celý den.
Byt je částečně zařízený:
- kuchyňská linka se spotřebiči: sklokeramická varná deska, elektrická trouba, digestoř, myčka
- koupelna: vana, umyvadlová skříňka
- další vybavení: dvoulůžko s matracemi, noční stolky, šatní skříň, komoda, rohový gauč, komoda na chodbě
Podlahy jsou kombinací vinylu a koberců. Topení i ohřev vody jsou řešeny centrálně dálkově. K bytu náleží i prostorný zděný sklep (6,5 m²) a dva balkony ideální pro ranní kávu nebo večerní relax.
PRONAJATO
Tato nabídka již není aktuální
Pokud vás nabídka zaujala, neváhejte mě kontaktovat, ideálně e‑mailem. Ráda vám byt osobně ukážu.
DŮM A LOKALITA
Dům je v dobrém technickém stavu. Hned za domem se nachází Centrální park Kbely, jehož hlavní osu tvoří Vinořský potok, který vytéká z nedalekého rybníčku. Naleznete zde amfiteátr s venkovním krbem, venkovní posilovnu nebo dětská hřiště. Na něj navazuje rozlehlý park Ekocentrum Prales, kde najdete motýlí louku s dřevěnými sochami, broukoviště nebo městskou farmu s hospodářskými zvířaty a naučnou stezku Cesta dřeva.
Klidná lokalita Kbely je perfektně dostupná MHD i vlakem. Autobusová zastávka Bakovská je vzdálena 200 m od domu – autobusy jezdí na metro Letňany (15 min) nebo Rajskou zahradu (16 min). Vlaková stanice je pouhých 280 m daleko a na Hlavní nádraží dojedete za 16 minut.
V bezprostřední blízkosti najdete veškerou občanskou vybavenost – obchody, restaurace, školy, školky i parky. Skvělá volba pro jednotlivce, pár či menší rodinu hledající klidné bydlení s výbornou dostupností do centra.
PODMÍNKY PRONÁJMU
Nájemné: 19.000 Kč / měsíc
Záloha na služby (1 osoba): 1.880 Kč / (2 osoby: 2.960 Kč)
Záloha na elektřinu 1.500 Kč
Kauce: 38.000 Kč
Rezervační poplatek (včetně DPH): 22.990 Kč
DALŠÍ INFORMACE
Byt je volný ihned. Požadujeme slušné, bonitní a spolehlivé nájemníky – nekuřáky. Preferujeme zájemce bez domácích mazlíčků.
Šárka Sabová
Makléřka z Horních Měcholup
Makléřka z Horních Měcholup
Co se stane po odeslání online poptávky?
Budu Vás kontaktovat do 24 hodin.
Pokud to bude třeba, domluvíme osobní setkání.
+420 776 636 121
sarka.sabova@remax-czech.cz
sarka.sabova@remax-czech.cz



