
V okolí domu se nachází veškerá občanská vybavenost, školy, školky, obchody, nákupní středisko Tesco, dětská hřiště. Dostatek sportovního a relaxačního vyžití poskytuje nedaleké sportovní centrum Gutovka.
Výborná dopravní dostupnost – pár kroků od domu se nachází stanice metra Skalka, zastávky autobusu i tramvaje.
Měsíční poplatky jsou následující:
nájemné 23.000 Kč
zálohy do SVJ (voda, topení, výtah, úklid společných prostor, popelnice) 4.000 Kč
elektřina a plyn dle odhadu spotřeby nájemníka
Vratná kauce ve výši dvou měsíčních nájmů, tzn 46.000 Kč.
Byt je vhodný až pro čtyřčlennou rodinu. Majitel požaduje slušné a bonitní nájemníky.
Nastěhování je možné od 1.1.2025 či v průběhu druhé poloviny prosince 2024.

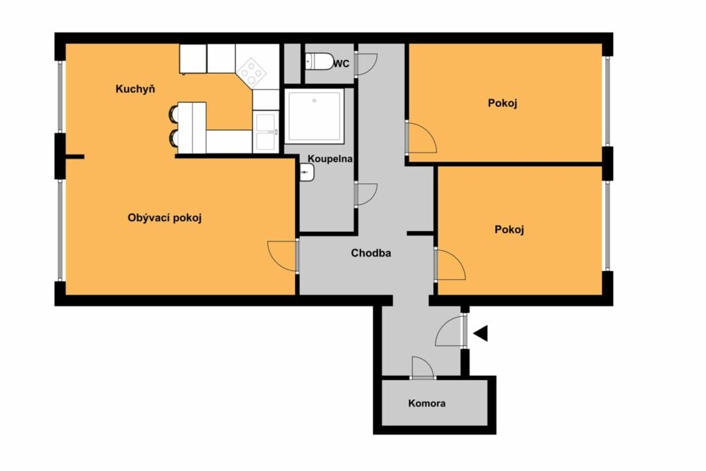
Byt nabízí novému nájemníkovi prostor o velikosti 70,2m2 a sestává se z chodby, komory, koupelny s rohovou vanou, samostatné toalety, obývacího pokoje s kuchyňským koutem a dvou neprůchozích pokojů. Je částečně vybavený. Kuchyňská linka je zařízena vestavěnými spotřebiči (varná deska s plynovými hořáky, trouba, digestoř, myčka), volně stojící lednicí s mrazákem. Součastí kuchyňské linky je barový pult se dvěma barovými židlemi, dále se v kuchyni nachází jídelní stůl se čtyřmi pohodlnými židlemi. Okna jsou plastová se žaluziemi.
Vytápění bytu a ohřev vody je dálkové.
V případě zájmu o prohlídku mě neváhejte kontaktovat, nejlépe e-mailem.
