
V místě je kompletní občanská vybavenost (školka, škola, obchody, restaurace, lékař, lékárna) ale i rybníky, parky a cyklostezky. Dominantou Horních Počernic je Chvalský zámek, společenské centrum městské části, kde se pořádá řada akcí a výstav. Velkým benefitem je blízkost metra Černý Most a nákupního centra CČM, IKEA, HORNBACH, MAKRO a dalších obchodů. Za sportem můžete vyrazit do tenisového klubu Horní Počernice, vyhlášeného golfového klubu Golf Resort Black Bridge (5 km) anebo nedalekého Klánovického lesa, který je jedinečný pro dlouhé procházky a cyklo výlety.
Horní Počernice jsou atraktivní lokalitou s plnou občanskou vybaveností a vynikající dopravní dostupností. V blízkosti se nachází MHD, možnost využití vlakového spojení Horní Počernice – Masarykovo nádraží, i rychlý přístup na dálnice.

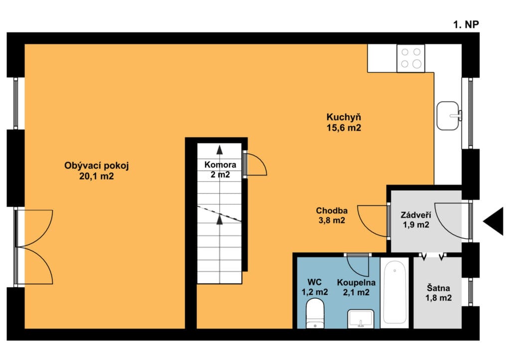
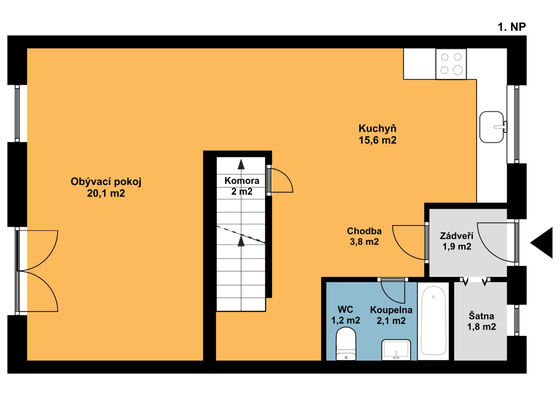
Díky promyšlené koncepci je dům příjemně dispozičně řešený a komfortní. V 1. podlaží je zádveří (1,9 m2), chodba (3,8 m2), kuchyně (15,6 m2), obývací pokoj (20,1 m2), šatna (1,8 m2), komora (2 m2), koupelna s wc (3,3 m2).
V koupelně je vana s umyvadlem a toaletou. V kuchyni je moderní a nadčasová rohová kuchyňská linka bílé barvy vybavená sklokeramickou varnou deskou, el. troubou a digestoří. V obývacím pokoji jsou francouzská okna se vstupem na terasu a zahrádku.
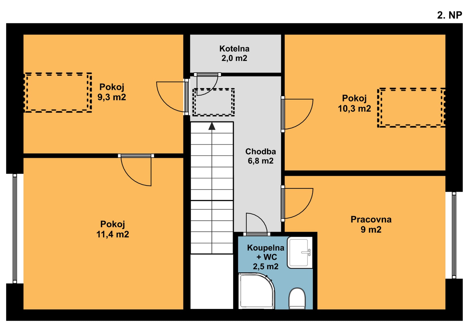
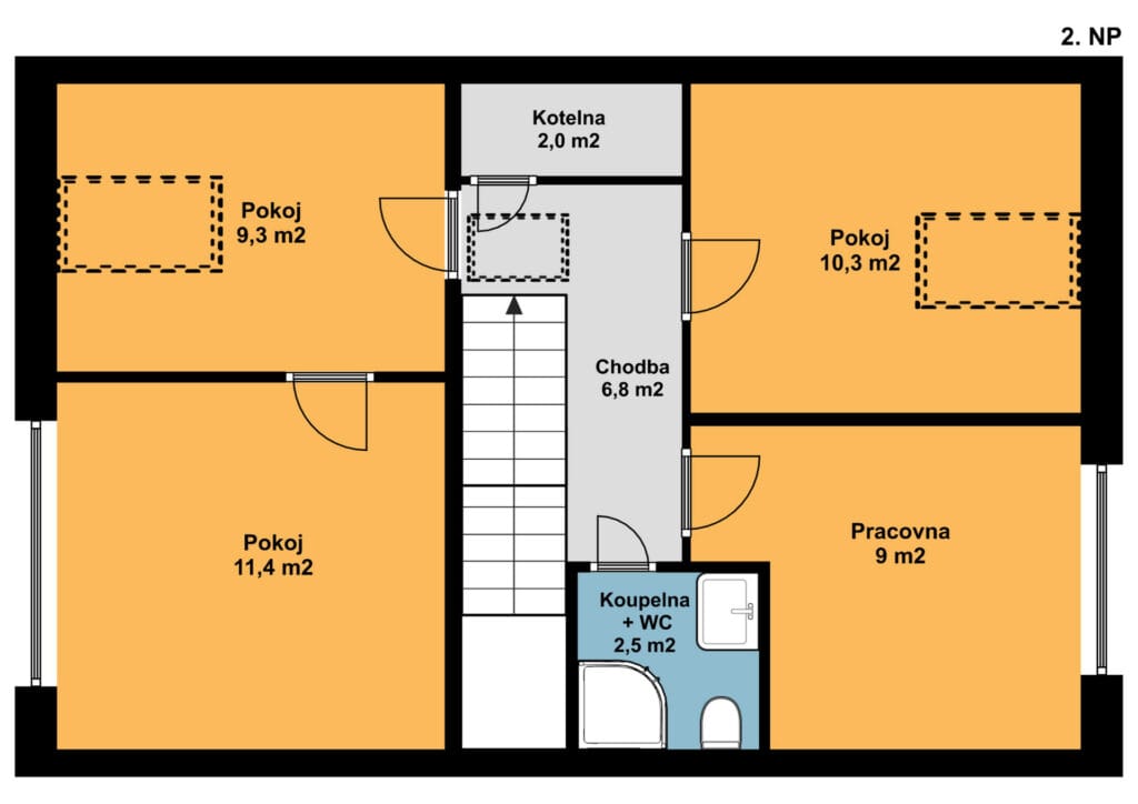
V 2. nadzemním podlaží je chodba (6,8 m2), kotelna (2 m2), pracovna (9 m2), pokoj (9,3 m2), pokoj (10,3 m2), pokoj (11,4 m2), koupelna s wc (2,5 m2).
Patra jsou propojena schodištěm s dřevěným obložením.
V celém domě jsou plastová okna, v obytných místnostech pokrývá podlahu plovoucí podlaha, v ostatních místnostech je dlažba. Vytápění a ohřev vody zajišťuje plynový kotel a bojler.
Garáž je umístěná pár kroků od domu.
V případě zájmu o další informace nebo prohlídku mě neváhejte kontaktovat.
