Prostorný rodinný dům 4+kk s garáží a zahradou v Zelenči — s výbornou dostupností do Prahy
| Dispozice | 4+kk | |
| Užitná plocha | 132m2 | |
| Počet podlaží | 2 | |
| Stavba | Cihla | |
| Stav objektu | Velmi dobrý | |
| Energ. náročnost | E — nehospodárná | |
| Vlastnictví | Osobní | |
| Vyhrazené parkování | Ano | |
| Sklep | Ne | |
| Komora | Ano | |
| Terasa | Ano | |
| Odpad | kanalizace | |
| Doprava | Vlak, Dálnice, Silnice, MHD, Autobus |
Nabízíme k prodeji útulný a prakticky řešený řadový rodinný dům v klidné a bezpečné části obce Zeleneč. Dvoupodlažní cihlový dům se zastavěnou plochou 84 m² a užitnou plochou 132 m² nabízí komfortní bydlení s dostatkem prostoru, soukromí i skvělou dostupností do Prahy.
Hlavní přednosti domu:
Dispozice 4+kk, dvě koupelny, šatna, dvě toalety
Zastřešená terasa, okrasná zahrada
Garáž + parkovací místo před domem
Krb v obývacím pokoji, dřevěné schodiště, francouzská okna
Klidná ulice, ideální pro rodiny s dětmi
Dům byl postaven v roce 2002 a od té doby prošel několika vylepšeními: nová kuchyň a podlahy, zastřešená terasa, rekonstrukce fasády
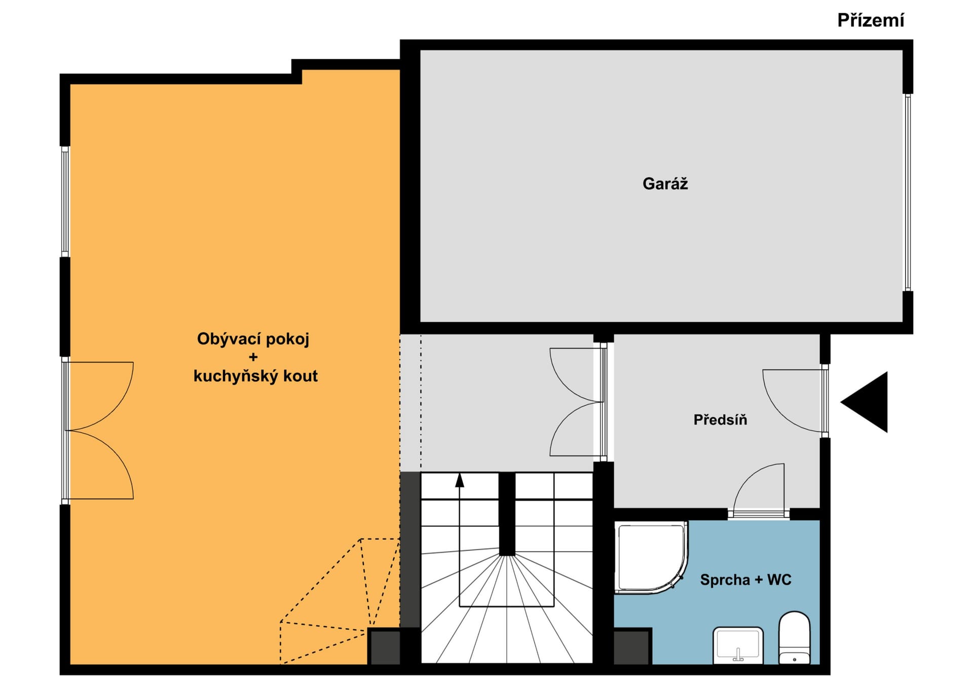
V 1. podlaží se nachází předsíň, koupelna se sprchovým koutem a WC, kuchyňský kout spojený s obývacím pokojem, vstup na zastřešenou terasu a zahradu. Ve 2. podlaží najdete 3 samostatné pokoje, šatnu, koupelnu s rohovou vanou a WC.
DŮM
Má sedlovou střechu, kvalitní euro okna s vakuovým dvojsklem, rozvody elektřiny v mědi a napojení na obecní vodovod, plyn i kanalizaci. K dispozici je optický internet a elektronický zabezpečovací systém.
PRODÁNO
Tato nabídka již není aktuální
Pokud hledáte dům, kde si můžete ihned po nastěhování začít užívat klidné bydlení s výborným zázemím, zavolejte mi a domluvte si termín prohlídky. Ty budou probíhat ve středu 23.4.2025.
POZEMEK A ZAHRADA
Celková výměra pozemku je 318 m². Okrasná zahrada poskytuje dostatek soukromí i prostoru pro relaxaci. Zastřešená terasa orientovaná na východ je ideálním místem pro společné rodinné snídaně, odpolední posezení, dětské hry i letní grilování – zkrátka prostor, kde si každý člen rodiny najde to své.
LOKALITA A DOSTUPNOST
Zeleneč je oblíbenou lokalitou pro rodiny – díky vlakovému spojení jste v centru Prahy (Hlavní nádraží) za 20 minut, autobus vás doveze na metro Černý Most. Veškerá občanská vybavenost je v dosahu – škola, školka, restaurace, koloniál, sportoviště, hřiště, tenisové kurty i přírodní cyklostezka podél Labe.
V okolí je Billa, Penny, Pepco, drogerie a Kik v Šestajovicích, Lidl v Horních Počernicích a do Klánovického lesoparku dojedete autem za 10 minut nebo na kole.
Makléřka z Horních Měcholup
Co se stane po odeslání online poptávky?
Budu Vás kontaktovat do 24 hodin.
Pokud to bude třeba, domluvíme osobní setkání.
sarka.sabova@remax-czech.cz



