Prostorný byt 3+1 s terasou v Praze 3 – Žižkov
| Dispozice | 3+1 | |
| Užitná plocha | 90m2 | |
| Podlaží | 6/6 | |
| Stavba | Ostatní | |
| Stav objektu | Velmi dobrý | |
| Energ. náročnost | G — mimořádně nehospodárná | |
| Vlastnictví | Družstevní | |
| Vyhrazené parkování | Ne | |
| Výtah | Ano | |
| Komora | Ano | |
| Terasa | Ano |
V zastoupení majitele vám exkluzivně nabízím k dlouhodobému pronájmu prostorný byt 3+1 o velikosti 72 m² + terasa 18 m², situovaný v městské části Praha 3 – Žižkov, v ulici Jana Želivského. Byt se nachází v posledním patře šesti podlažního domu s výtahem.
BYT
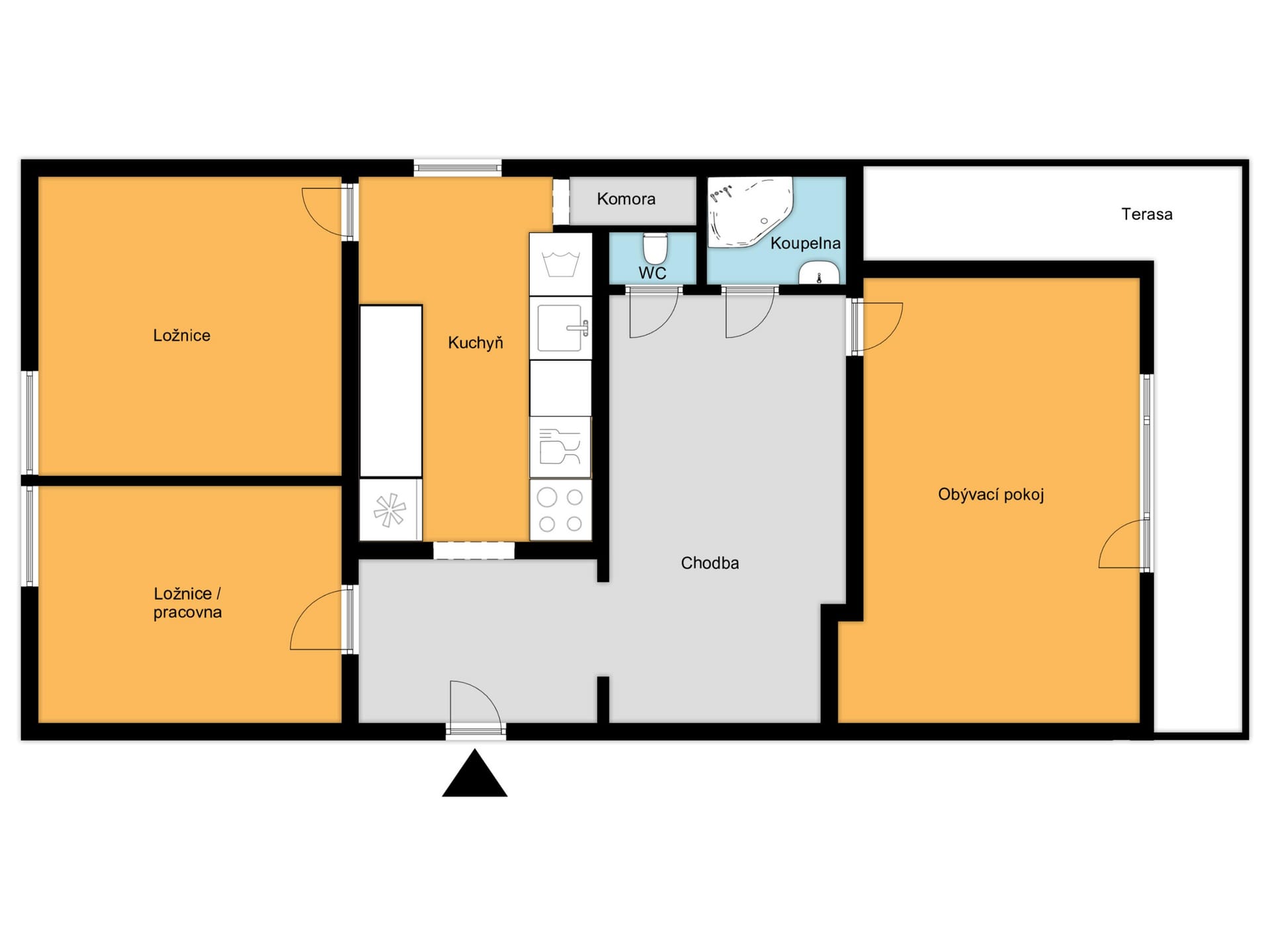
Dispozice bytu je velmi praktická a nabízí komfortní bydlení pro rodinu s dětmi nebo pár. Byt tvoří chodba, pracovna/dětský pokoj, kuchyň, komora, ložnice, WC, koupelna, obývací pokoj a prostorná terasa ve tvaru písmene L.
Konkrétní představu o uspořádání získáte po shlédnutí půdorysu, který je součástí fotogalerie.
Orientace bytu je na tři světové strany – ložnice a pracovna na jihozápad, kuchyň na severozápad a obývací pokoj s terasou na severovýchod.
PODNAJATO
Tato nabídka již není aktuální
Pokud vás nabídka zaujala, neváhejte mě kontaktovat – nejlépe e‑mailem.
Byt je pronajímán částečně zařízený:
— kuchyňská linka se spotřebiči: sklokeramická varná deska, elektrická trouba, digestoř, myčka, lednice s mrazákem, mikrovlnná trouba, pračka, jídelní stůl se třemi židlemi
— v ložnici: dvoulůžková postel bez matrací, šatní skříň, pracovní stůl, komoda
— v pracovně: pracovní stůl s kancelářským křeslem
— v chodbě: věšák, botník, šatní skříň
— v obývacím pokoji: skříňka pod TV, dvě lampy, konferenční stolek, pohovka, šatní skříň
— v koupelně: rohová vana, umyvadlo se skříňkou a zrcadlová skříňka
Podlahy v bytě jsou plovoucí, v koupelně a na WC je položena dlažba.
Vytápění i ohřev vody jsou centrální dálkové. K dispozici je optický internet.
DŮM A LOKALITA
Dům je v dobrém stavu, s výtahem.
Lokalita Žižkov nabízí vynikající občanskou vybavenost – v bezprostřední blízkosti najdete školy, školky, parky, obchody i sportovní zařízení.
Tramvajová zastávka Nákladové nádraží Žižkov je přímo před domem a poskytuje rychlé spojení do centra města – na metro A Želivského jsou to pouze 2 stanice (cca 4 minuty).
PODMÍNKY PRONÁJMU
Nájemné: 25.000 Kč/měsíc
Záloha na služby (pro 2 osoby): 3.600 Kč/měsíc
Elektřina: záloha 1.170 Kč/měsíc
Kauce: 50.000 Kč
Provize RK: 30.250 Kč včetně DPH
DALŠÍ INFORMACE
Požadujeme spolehlivé, slušné a bonitní zájemce, nekuřáky. Preferujeme zájemce bez domácích mazlíčků.
Díky své dispozici, umístění a prostorné terase je ideální volbou pro ty, kteří hledají pohodlné bydlení v širším centru Prahy.
Nastěhování je možné ihned.
Makléřka z Horních Měcholup
Co se stane po odeslání online poptávky?
Budu Vás kontaktovat do 24 hodin.
Pokud to bude třeba, domluvíme osobní setkání.
sarka.sabova@remax-czech.cz



