
V obývacím pokoji a ložnici je plovoucí podlaha, v ostatních místnostech dlažba. Okna jsou plastová s vnitřními žaluziemi, v ložnici a kuchyni jsou okna střešní.
Byt je vybaven kuchyňskou linkou se spotřebiči (plynová varná deska, elektrická trouba, digestoř, myčka, lednice s mrazákem), jídelním stolem a židlemi. V ložnici najdete vestavěnou skříň a dvojlůžko, v obývacím pokoji vestavěnou skříň, TV stolek, rozkládací lůžko/gauč se zdravotními matracemi, TV a další úložné prostory. V koupelně je vana, termostatická vanová baterie, sprchová zástěna, umyvadlo, skříňka pod umyvadlem, automatická pračka a otočný kombinovaný žebřík.
Vytápění a ohřev vody zajišťuje plynový kotel umístěný v komoře.
DŮM A LOKALITA
Dům je umístěn v klidné lokalitě Dobřejovic, které se nacházejí jihovýchodně od Prahy, v sousedství obcí Jesenice a Průhonice. V okolí najdete všechny potřebné služby, jako je mateřská škola, obchod s potravinami, pošta, pekárna a fotbalové hřiště. Dominantou obce je barokní zámek a obklopují ji krásné přírodní scenérie.
V obci je výborná dopravní dostupnost do Prahy, autobusem do Čestlic dojedete za 6 minut, na metro Opatov za 20 minut. K dispozici jsou také cyklostezky a krásné okolí pro vycházky a sportovní aktivity.
PODMÍNKY PRONÁJMU
– Nájemné: 17.000 Kč/měsíc
– Záloha na služby (pro 2 osoby): 1.000 Kč/měsíc
– Internet: 300 Kč
– Elektřina a plyn: převádí se na nájemníka (nyní jsou nastavené zálohy 1.600 Kč/měsíc)
Měsíční náklady celkem: 19.900 Kč
Kauce: 30.000 Kč
Provize RK: 20.570 Kč
Nastěhování je možné od 1.8.2025.
DALŠÍ INFORMACE
Požadujeme spolehlivé, slušné a bonitní zájemce. Preferujeme nekuřáky a zájemce bez domácích mazlíčků.

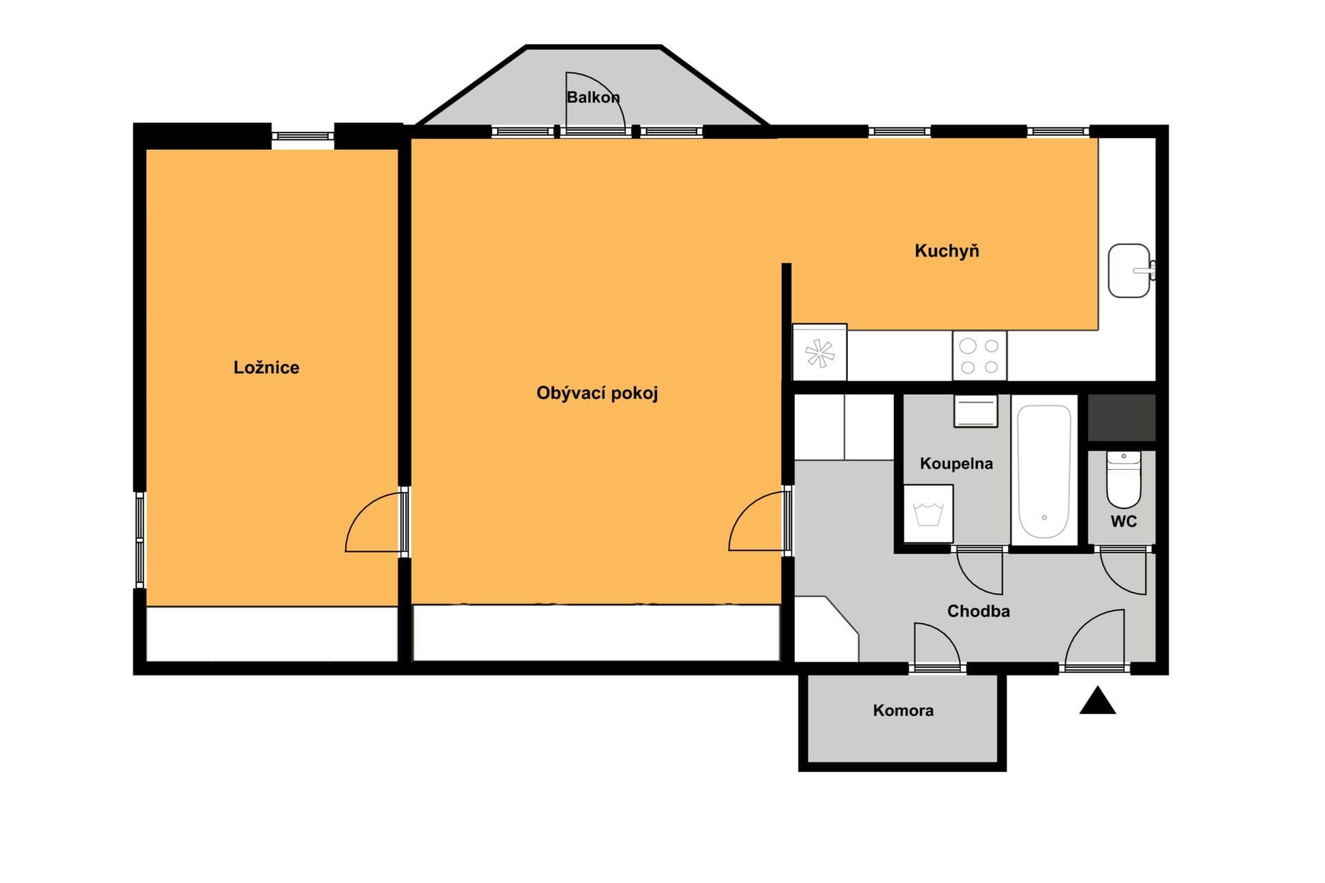
BYT
Byt je prakticky dispozičně řešen a nabízí dostatek prostoru pro komfortní bydlení. Skládá se z předsíně (5,36 m²), komory (2,22 m²), WC (0,98 m²), koupelny (4,77 m²), obývacího pokoje (23,69 m²), ložnice (16,67 m²), kuchyně (11,42 m²), balkónu (1,6 m²) a sklepa (1,35 m²).
Pokud vás nabídka zaujala, neváhejte mě kontaktovat – nejlépe e-mailem pro domluvení prohlídky.
